|
Z9 型胀紧联结套
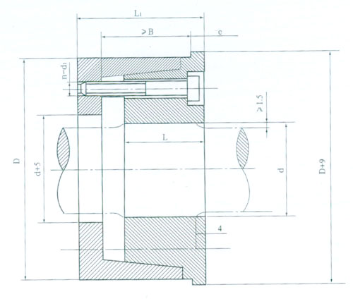
Z9 型胀套,适用于轴和轴上零件的联结,常用于带式输送机驱动滚筒轴与筒体的联结,其结构形式和基本尺寸按图和下表的规定。
标记示例
内径d=100m,外径D=145mm的Z9 型胀紧联结套:
胀套Z9 -100×145 JB/T7934-1999 |
|
|
| |
|
|
| |
|
Z9 型胀紧联结套的基本尺寸和参数
|
基本尺寸
|
内六角螺钉
|
额定负荷
|
胀套与轴结合面上的压力P1 N/mm2
|
胀套与轮彀结合面上的压力P1 N/mm2
|
螺钉的拧紧力距MAN.m
|
重量kg
|
d
|
D
|
L
|
L1
|
e
|
B
|
d1
|
n
|
轴向力Ft kN
|
转矩Mt kN.m
|
mm
|
100
|
145
|
54
|
75
|
5
|
65
|
M12×60
|
8
|
192
|
9.60
|
102
|
70
|
145
|
4.7
|
110
|
155
|
191
|
10.50
|
93
|
66
|
5.1
|
120
|
165
|
9
|
216
|
13.00
|
96
|
70
|
5.5
|
130
|
180
|
63
|
84
|
6
|
72
|
M12×70
|
12
|
287
|
17.80
|
100
|
78
|
7.5
|
140
|
190
|
20.20
|
94
|
69
|
7.9
|
150
|
200
|
21.60
|
88
|
66
|
8.4
|
160
|
210
|
15
|
360
|
28.80
|
101
|
77
|
8.9
|
170
|
225
|
16
|
383
|
32.60
|
101
|
76
|
10.5
|
180
|
235
|
18
|
431
|
38.80
|
108
|
82
|
1.0
|
190
|
250
|
69
|
94
|
81
|
M14×75
|
15
|
493
|
46.80
|
106
|
80
|
230
|
14.3
|
200
|
260
|
16
|
526
|
52.80
|
100
|
77
|
15.0
|
220
|
285
|
M16×75
|
14
|
640
|
70
|
119
|
92
|
17.8
|
250
|
305
|
86
|
112
|
7
|
98
|
M16×90
|
16
|
731
|
88
|
96
|
75
|
355
|
23.2
|
260
|
325
|
18
|
822
|
107
|
103
|
82
|
355
|
24.8
|
280
|
355
|
94
|
120
|
8
|
106
|
M16×100
|
20
|
910
|
128
|
96
|
75
|
33
|
300
|
375
|
22
|
1000
|
151
|
99
|
79
|
36
|
320
|
405
|
109
|
142
|
125
|
M20×120
|
18
|
1280
|
206
|
101
|
80
|
690
|
52
|
340
|
425
|
20
|
1420
|
242
|
106
|
85
|
54
|
|
| 注:Z9 型胀紧联结套螺钉的机械性能等级为12.9级 |